MEIN ERGEBNIS ANPASSEN

HOFSEITIGE ALTBAUWOHNUNG mit neuer Küche und neuem Badezimmer - Nähe Ungargasse (Balkonanbau ca. 7m2 möglich!) - Objektnr. 5425037

1030
Ort
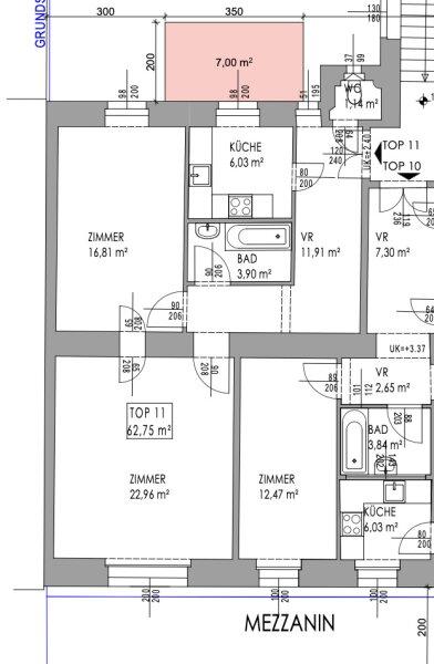
62,76 m²
Fläche
2.0
Zimmer
WEITERE MEDIEN

ECKDATEN
FindMyHome.at // Externe Immobilien-ID5425037 // 15439
ImmobilienartWohnung - Eigentum
Anschrift1030 Wien
Befeuerung
Stock1
Fläche62,76 m²
Zimmer2.0
Bad1
WC1
Kaufpreis:€ 495.000,00
Ratenzahlung:Finanzierungsmöglichkeiten für diese Immobilie anzeigen
Provision: 3% des Kaufpreises zzgl. 20% USt.







BESCHREIBUNG

HOFSEITIGE ALTBAUWOHNUNG mit neuer Küche und neuem Badezimmer - Nähe Ungargasse (Balkonanbau ca. 7m2 möglich!)

NEULINGGASSE - WIENER CHARME & MODERNES WOHNEN 

Willkommen in der Neulinggasse im Herzen des 3. Bezirks von Wien ein zeitloser Altbau aus der Wiener Gründerzeit (Baujahr 1913), der durch eine umfassende Sanierung und einen modernen Dachgeschoßausbau (2021) in neuem Glanz erstrahlt.

Dieses sanierte Schmuckstück verbindet historische Eleganz mit zeitgemäßem Komfort. Der Eingangsbereich beeindruckt mit edlen Holzverkleidungen und einem modernen digitalen schwarzen Brett, das die Bewohner stets auf dem Laufenden hält. Die renovierten Lichthöfe sorgen für ein helles und freundliches Ambiente. Ein Lift ist selbstverständlich vorhanden und bietet bequemen Zugang zu allen Stockwerken.

Im Innenhof stehen Fahrradabstellmöglichkeiten zur Verfügung, und jeder Wohnung ist ein praktisches Kellerabteil zugeordnet.

Wohncharme im Wiener Altbaustil

Die Wohnungen vereinen klassische Details der Gründerzeit mit modernem Wohnen. Freuen Sie sich auf:

  • Hohe Räume, die ein luftiges Wohngefühl schaffen
  • Fischgrätparkettböden für einen edlen Touch
  • Wiener Kastenfenster
  • Zeitlose Kassettentüren
  • inkl. vollausgestatteter Küchen

Im Haus stehen aktuell großzügige 2- bis 5-Zimmer-Wohnungen mit Größen zwischen 56 und 123 m² zur Verfügung. Der moderne Dachgeschoßausbau bietet zusätzlich Wohnungen mit Freiflächen, ideal für all jene, die urbanes Wohnen mit einem Hauch von Grün genießen möchten.

 

Neu genehmigt: private Balkonoasen im Innenhof
Die Baubewilligung für Balkonanbauten wurde soeben erteilt. Künftige Eigentümerinnen und Eigentümer können auf eigene Kosten großzügige Balkone von ca. 6 bis 8 m² errichten lassen und sich damit eine wertvolle private Freifläche schaffen. Eine Seltenheit bei einem Wiener Altbau und ein Plus für Lebensqualität und Wertsteigerung.

 

Perfekte Lage und Infrastruktur

Die Neulinggasse liegt in einer der begehrtesten Lagen Wiens und bietet eine hervorragende Infrastruktur:

  • Einkaufsmöglichkeiten: Galleria Landstraßer Hauptstraße und Wien Mitte The Mall
  • Kulinarik und Märkte: Der charmante Rochusmarkt lädt zum Genießen ein
  • Natur & Freizeit: Arenbergpark mit Hundezone und der nahegelegene Stadtpark
  • Öffentliche Verkehrsanbindung: Exzellente Anbindung an das öffentliche Verkehrsnetz

 

Öffentliche Verkehrsmittel

- Straßenbahn:  O
- Bus: 4A
- U Bahn: U3
- Schnellbahn: Bahnhof Wien Rennweg 

 

Nebenkosten: 

Grundbucheintragung: 1,1% des Kaufpreises

Grunderwerbssteuer: 3,5% des Kaufpreises

Maklerprovision: 3% des Kaufpreises + 20% USt. 

Kaufvertragshonorar: 1,2% des Kaufpreises zzgl. USt und Barauslagen I Kaufvertragserstellung erfolgt durch die Kanzlei Tiefenthaler & Gnesda Rechtsanwälte

 

Maklervereinbarung: Wir ersuchen um Verständnis, dass wir bei Anfragen zur Objektadresse, bzw. Besichtigungstermin  aufgrund neuer gesetzlicher Bestimmungen Unterlagen erst dann zusenden können, wenn Sie vorab bestätigen, dass Sie unser sofortiges Tätigwerden wünschen und über Ihre Rücktrittsrechte aufgeklärt wurden. Sie bekommen nach Ihrer schriftlichen Anfrage mit vollständiger Angabe des Namens, Anschrift und Telefonnummer ein Email, in dem Sie diese Punkte bestätigen müssen.

 

Haftungsausschluss:  Wir weisen darauf hin, dass sämtliche Daten im vorliegenden Angebot sowie die von unserem Büro an Sie weitergegebenen Auskünfte, vom Eigentümer der Immobilie zur Verfügung gestellt wurden. Ebenso sind Informationen von Dritten (z.B. behördliche Informationen) eingeholt worden, auch für diese können wir unsererseits keinerlei Haftung für deren uneingeschränkte Richtigkeit übernehmen.

Wir weisen darauf hin, dass zwischen dem Vermittler und dem zu vermittelnden Dritten ein familiäres oder wirtschaftliches Naheverhältnis besteht.

Der Vermittler ist als Doppelmakler tätig.


Infrastruktur / Entfernungen

Gesundheit
Arzt <500m
Apotheke <500m
Klinik <500m
Krankenhaus <500m

Kinder & Schulen
Schule <500m
Kindergarten <500m
Universität <500m
Höhere Schule <500m

Nahversorgung
Supermarkt <500m
Bäckerei <500m
Einkaufszentrum <1.000m

Sonstige
Geldautomat <500m
Bank <500m
Post <500m
Polizei <1.000m

Verkehr
Bus <500m
U-Bahn <1.000m
Straßenbahn <500m
Bahnhof <500m
Autobahnanschluss <2.000m

Angaben Entfernung Luftlinie / Quelle: OpenStreetMap

Provision: 3% des Kaufpreises zzgl. 20% USt.


Alle Details anzeigen

KONTAKT






 

Lasse dich kostenlos vom Anbieter dieser Immobilie zurückrufen.







 


 
Moritz Immobilien
Anita Ochsenhofer
Telefonnummer anzeigen Telefon Allgemein: +4319971693
Handy Bearbeiter: +436607413324
 
Bitte dem Makler die FindMyHome.at - ID bekanntgeben: 5425037

Bewertungen dieses Anbieters
Netiquette

BEWERTUNGEN DIESES ANBIETERS

 
Netiquette
FINDMYHOME.AT
NETIQUETTE
Auch du kannst bewerten! 7 Tage nach deiner Anfrage erhältst du dafür von uns ein Bewertungsmail.
Alle Infos zu unseren Auszeichnungen und dem FINDMYHOME.AT Qualitätsprogramm findest du hier: Übersicht anzeigen

FINANZIERUNG
?>

Du willst wissen, wie viel dein Umzug kosten wird?

Mach gleich den kostenlosen Preisvergleich und schau, welche seriösen Anbieter in deiner Region günstig deinen Umzug organisieren


ZUM UMZUGS-VERGLEICH
-->

MYHOME BLOG
SuchAgentin auf FindMyHome.at
Unterschiedlichen Rechtsthemen, köstliche Rezepte, neueste Design-Highlights, sowie aktuelle Technik-Tools für Ihr Eigenheim.


FINDMYHOME.AT SUCHAGENTIN
SuchAgentin auf FindMyHome.at
Hallo, soll ich dir ähnliche Immobilien kostenfrei per E-Mail schicken?


ÄHNLICHE IMMOBILIEN
Aehnliche Immobilie - Vorschaubild 1

Grünes Wohnen in der Stadt: Ihr neues Zuhause im 3. Bezirk... - Objektnr. 5579388

68,72 m² - 3.0 Zimmer
505000 €
PLZ: 1030

Mehr anzeigen

Aehnliche Immobilie - Vorschaubild 2

Optimal geschnittene 2 Zimmerwohnung mit perfekter Infrastru... - Objektnr. 5576205

69,76 m² - 2.0 Zimmer
453000 €
PLZ: 1030

Mehr anzeigen

Aehnliche Immobilie - Vorschaubild 3

Dachgeschossmaisonette mit tollen Grundriss riesen Loggia... - Objektnr. 5192414

58,72 m² - 2.0 Zimmer
449000 €
PLZ: 1030

Mehr anzeigen

Durch die Nutzung unserer Seite erklären Sie sich mit der Verwendung von Cookies zur Verbesserung Ihres Online-Erlebnisses einverstanden. Detaillierte Informationen zu diesem und weiteren Themen erhalten Sie in unserer Datenschutzerklärung.