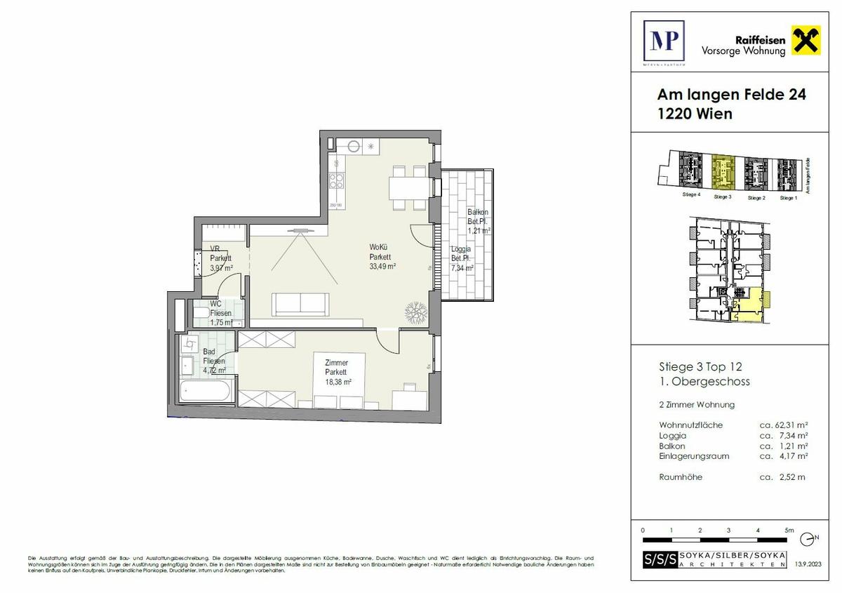
Vorsorgewohnung | Stadt. Land. Fluss. | 2 - Zimmer Anlagewohnung - Top 3/12 - Objektnr. 5308579
ECKDATEN
BESCHREIBUNG
KONTAKT
Lasse dich kostenlos vom Anbieter dieser Immobilie zurückrufen.
Raiffeisen Vorsorge Wohnung GmbH
Raiffeisen Vorsorge Wohnung
Raiffeisen Vorsorge Wohnung
Telefonnummer anzeigen
Telefon Allgemein: +4315333000
Bitte dem Makler die FindMyHome.at - ID bekanntgeben: 5308579
Bitte dem Makler die FindMyHome.at - ID bekanntgeben: 5308579
BEWERTUNGEN DIESES ANBIETERS
ø 48h ANTWORT
WIRD GERNE
WEITEREMPFOHLEN
WEITEREMPFOHLEN
BESONDERS
FREUNDLICH
FREUNDLICH
FINDMYHOME.AT
NETIQUETTE
NETIQUETTE
Auch du kannst bewerten! 7 Tage nach deiner Anfrage erhältst du dafür von uns ein Bewertungsmail.
Alle Infos zu unseren Auszeichnungen und dem FINDMYHOME.AT Qualitätsprogramm findest du hier: Übersicht anzeigen
Alle Infos zu unseren Auszeichnungen und dem FINDMYHOME.AT Qualitätsprogramm findest du hier: Übersicht anzeigen
FINANZIERUNG
Du willst wissen, wie viel dein Umzug kosten wird?
Mach gleich den kostenlosen Preisvergleich und schau, welche seriösen Anbieter in deiner Region günstig deinen Umzug organisieren
ZUM UMZUGS-VERGLEICH






















